Skip to main content

Our Work

 

Medium Density - 2 Site development

Medium Density - 2 Site development

Medium Density -Large site development

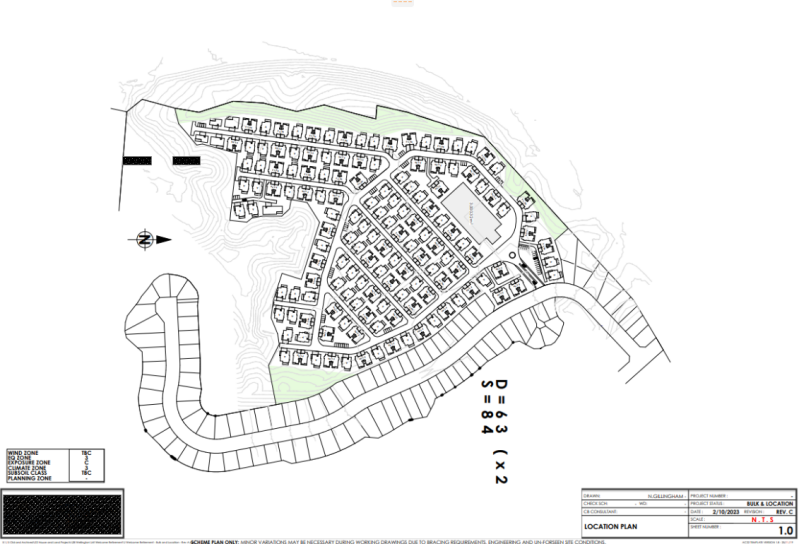
Residential Development - Master Planning

Retirement Village - Master Planning

Residential Landscape

Residential Development - Master Planning

Rural Residential 

Empty nesters - One bedroom country retreat

Rural Residential 

Art Studio 

Rural Residential Build

Shed Build

Portico Addition

Residential Build

Residential Build

Residential Build

Tiny Home

Residential Build

Hunting Lodge

Large Renovation - 1960's Cottage

Residential Build

Relocated 1960's Home

Commercial Build - Tauriko

Tauranga Police Station - Developed Design & Construction Detailing

Tauranga Police Station - Developed Design & Construction Detailing

Tauranga Police Station - Developed Design & Construction Detailing

Lake House

Lake House

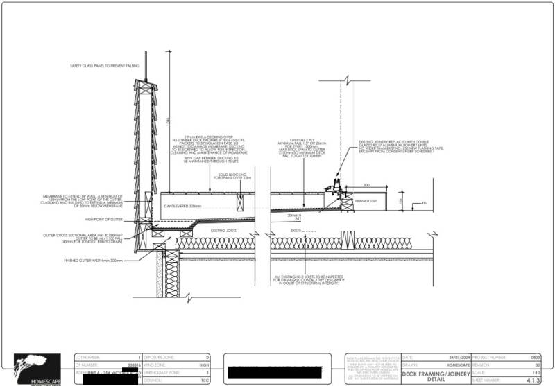
Deck Consent

Historic Church - Residential Conversion

Historic Church - Residential Conversion

Office Fit-out Consent

Office Fit-out Consent

Garage conversion to minor dwelling

Tiny house - Shed conversion

Garage to match existing historical villa

Construction detailing

Medium density concept - Mt Maunganui

Existing shed conversion to minor dwelling & outdoor room - Te Puna